residência rua polônia
em parceria com Gabriel Kogan
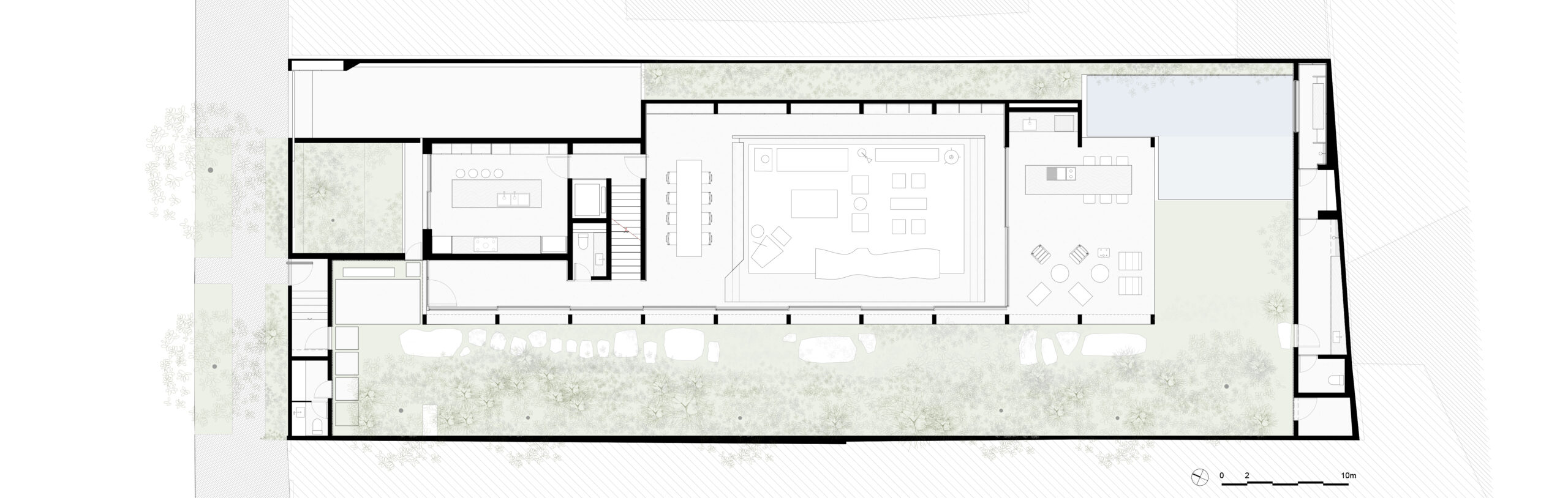
A arquitetura vista de pontos nodais – Buscamos, na implantação da casa, deixar livre uma porção do terreno que perpassa praticamente toda a profundidade do lote de 42 por 15m. Disso se conformou uma situação em que, ao se adentrar no lote, o jardim se releva na frente e a casa, paralela a extensão do jardim, à esquerda. Essa vista externa da casa logo na entrada do lote, foi pensada como um ponto nodal de percepção do espaço. O percurso pela obra se faz, daí em diante, a partir da construção de uma sequência de vistas que exploram a frontalidade e a profundidade do espaço, minimizando diagonais.
Uma seção de um grid infinito – Os módulos de concreto da fachada, cada um com 2,90 metros de largura e 3,00 de altura, se repetem perpendicularmente ao longo de praticamente todo o terreno, em dois andares. Imaginamos que a casa fosse uma espécie de ocupações prototípica que poderia percorrer todo o território. As empenas cegas, no fundo e na frente, marcam um corte, abrupto, nessa continuidade, e sinalizam uma continuação infinita. A repetição está no cerne da ideia do minimalismo, mas aqui propomos uma reinterpretação dessa questão.
local
são paulo-sp
área
977 m²
arquitetura
Gabriel Kogan e Guilherme Pianca, com co-autoria de Clara Werneck
produção de interiores
Susanna Crestani
mobiliário
Sofá, tapete, mesa de centro e cadeiras de jantar: Atrium, Minotti
Mesa de jantar, poltronas, mesa lateral: Etel
Poltrona Jangada: Passado Composto
Paisagismo
Rodrigo Oliveira
Incorporação Real
Mira Properties
Construção Construction
Fairbanks & Pilnik
Fotografia
Pedro Kok


